ЖК Отражение
Преимущества и локация:
ЖК «Отражение» расположен в самом экологически чистом Приволжском районе Казани. Это идеальный выбор для тех, кто ценит природу, не жертвуя преимуществами мегаполиса. Рядом — живописная Берёзовая роща для прогулок и первый в городе современный термальный комплекс для оздоровления. Развитая инфраструктура включает школы, детские сады, ТЦ «Порт», гипермаркет «Лемана Про» и всю необходимую повседневную логистику.
Ключевые характеристики:
Класс: Комфорт.
Район: Приволжский, Казань.
Количество домов: 3 монолитных дома высотой 25 этажей.
Срок сдачи: IV квартал 2025 года, ключи — не позднее 30.06.2026.
Паркинг: Многоуровневый, на 438 машино-мест.
Инфраструктура: 2 школы на 2725 мест, 2 детских сада на 340 мест.
Архитектура и фасады:
Архитектурный облик комплекса подчёркивает его статус. Нижние этажи облицованы кирпичом, верхние — декоративной плиткой в природных оттенках в системе навесного вентилируемого фасада. Увеличенные оконные проёмы (от 60 см от пола) наполняют квартиры светом, а стилизованные корзины для кондиционеров сохраняют эстетичный вид зданий.
Планировки и отделка:
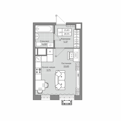
Квартиры в ЖК «Отражение» отличаются эргономичными планировками правильной формы без лишних выступов, что позволяет рационально использовать пространство. Отделка White Box («под чистовую») включает:
Перегородки из тёплого кирпича Porotherm.
Выровненные стены и полусухую стяжку пола.
Качественные радиаторы с терморегуляцией.
Стальные входные двери.
Безопасные и комфортные дворы:
Территория комплекса — это продуманное пространство для всех жителей. Здесь есть современные детские площадки с безопасным покрытием, воркаут-зоны для фитнеса и йоги, а также уютные зоны отдыха с затенёнными участками. Авторские входные группы, просторные подъезды и специальные места для колясок и велосипедов дополняют картину комфорта. Для владельцев питомцев предусмотрены станции для помывки лап.
Инфраструктура и досуг:
В шаговой доступности от ЖК «Отражение» есть всё для жизни:
Образование: Многопрофильный лицей №186 «Перспектива», детские сады.
Торговля: Супермаркет «Smart», ТЦ «Порт», гипермаркет «Лемана Про».
Медицина: Крупнейшие клиники — РКБ и ДРКБ.
Досуг: Школа волейбола, термальный комплекс, кафе и рестораны.
ЖК «Отражение» — это больше чем недвижимость. Это отражение современного подхода к жизни, где вашему комфорту, безопасности и активному досугу уделено первостепенное внимание. Выбирайте квартиру в Казани в ЖК «Отражение» для жизни в гармонии с городом и природой.
Застройщик
СУВАРСТРОИТ
Тип дома
Монолитно-кирпичный
Этажность
25-25
Парковка
Открытая
Количество корпусов
3
Квартир в доме
528
Отделка
Черновая
Сроки сдачи
2 кв. 2026
Высота потолков
2.6 м²
Класс жилья
Комфорт
Квартиры в ЖК Отражение
Все квартиры
Вы можете забронировать и купить квартиру в новостройке от застройщика без комиссии с черновой или чистовой отделкой.
-
1-комн. от 8.2 млн ₽ от 35 м² Этажность 25-25 Забронировать
-
2-комн. от 9.1 млн ₽ от 46 м² Этажность 25-25 Забронировать
-
3-комн. от 12.7 млн ₽ от 73 м² Этажность 25-25 Забронировать
Фотографии и рендеры представлены для информирования об архитектурных, технических и планировочных решениях. Планировочные решения квартир и комнат, схемы расстановки перегородок (зонирование) и расстановки мебели на кухне и в санузлах носят рекомендательный характер и представлены в качестве примера. Юридически значимая информация изложена в договорах долевого участия, заключаемых в соответствии с 214-ФЗ.
Предложение не является офертой. Наличие квартир, помещений и актуальные цены уточняйте в отделе продаж.
Жилые комплексы Казани
ЖК Журавли
Сроки сдачи: 3 кв. 2022
Студия 0 м², от 0.0 млн ₽
1-комн. 34 м², от 7.3 млн ₽
2-комн. 50 м², от 10.7 млн ₽
3-комн. 102 м², от 18.5 млн ₽
ЖК Столичный
Сроки сдачи: 3 кв. 2022
Студия 0 м², от 0.0 млн ₽
1-комн. 54 м², от 13.9 млн ₽
2-комн. 84 м², от 16.7 млн ₽
3-комн. 103 м², от 21.5 млн ₽
ЖК Яратам
Сроки сдачи: 4 кв. 2025
Студия 0 м², от 0.0 млн ₽
1-комн. 34 м², от 8.4 млн ₽
2-комн. 56 м², от 10.9 млн ₽
3-комн. 73 м², от 13.6 млн ₽
ЖК Квартал Сюита
Сроки сдачи: 3 кв. 2023
Студия 0 м², от 0.0 млн ₽
1-комн. 40 м², от 14.6 млн ₽
2-комн. 0 м², от 0.0 млн ₽
3-комн. 62 м², от 20.0 млн ₽
ЖК Savin Family
Сроки сдачи: 4 кв. 2024
Студия 32 м², от 10.5 млн ₽
1-комн. 35 м², от 11.5 млн ₽
2-комн. 59 м², от 17.2 млн ₽
3-комн. 84 м², от 22.8 млн ₽
ЖК GloraX Экосити
Сроки сдачи: 3 кв. 2027
Студия 27 м², от 8.1 млн ₽
1-комн. 31 м², от 8.2 млн ₽
2-комн. 43 м², от 10.2 млн ₽
3-комн. 63 м², от 13.2 млн ₽
ЖК Дома у сада
Сроки сдачи: 4 кв. 2023
Студия 0 м², от 0.0 млн ₽
1-комн. 38 м², от 6.4 млн ₽
2-комн. 53 м², от 7.9 млн ₽
3-комн. 80 м², от 9.1 млн ₽
ЖК Палитра
Сроки сдачи: 2 кв. 2022
Студия 0 м², от 0.0 млн ₽
1-комн. 0 м², от 0.0 млн ₽
2-комн. 0 м², от 0.0 млн ₽
3-комн. 72 м², от 10.7 млн ₽
ЖК Сказочный лес
Сроки сдачи: 2 кв. 2025
Студия 0 м², от 0.0 млн ₽
1-комн. 29 м², от 7.1 млн ₽
2-комн. 47 м², от 9.6 млн ₽
3-комн. 69 м², от 11.5 млн ₽
ЖК Свобода
Сроки сдачи: 4 кв. 2023
Студия 0 м², от 0.0 млн ₽
1-комн. 41 м², от 9.6 млн ₽
2-комн. 64 м², от 15.4 млн ₽
3-комн. 99 м², от 19.5 млн ₽
ЖК Малевич
Сроки сдачи: 3 кв. 2028
Студия 35 м², от 9.1 млн ₽
1-комн. 36 м², от 9.5 млн ₽
2-комн. 54 м², от 13.1 млн ₽
3-комн. 73 м², от 16.6 млн ₽
ЖК Парк Маяк
Сроки сдачи: 2 кв. 2026
Студия 23 м², от 4.9 млн ₽
1-комн. 35 м², от 6.0 млн ₽
2-комн. 47 м², от 7.7 млн ₽
3-комн. 67 м², от 9.4 млн ₽
ЖК Лето
Сроки сдачи: 3 кв. 2022
Студия 0 м², от 0.0 млн ₽
1-комн. 31 м², от 6.9 млн ₽
2-комн. 41 м², от 8.0 млн ₽
3-комн. 85 м², от 13.3 млн ₽
ЖК Радужный-2
Сроки сдачи: 4 кв. 2025
Студия 0 м², от 0.0 млн ₽
1-комн. 20 м², от 3.4 млн ₽
2-комн. 52 м², от 6.8 млн ₽
3-комн. 68 м², от 8.4 млн ₽
ЖК Южный Парк
Сроки сдачи: 4 кв. 2020
Студия 0 м², от 0.0 млн ₽
1-комн. 24 м², от 4.9 млн ₽
2-комн. 34 м², от 6.3 млн ₽
3-комн. 45 м², от 7.6 млн ₽
ЖК GloraX Урицкого
Сроки сдачи: 2 кв. 2028
Студия 29 м², от 8.4 млн ₽
1-комн. 30 м², от 8.7 млн ₽
2-комн. 63 м², от 10.8 млн ₽
3-комн. 79 м², от 15.1 млн ₽
ЖК Казань XXI век
Сроки сдачи: 4 кв. 2023
Студия 0 м², от 0.0 млн ₽
1-комн. 0 м², от 0.0 млн ₽
2-комн. 0 м², от 0.0 млн ₽
3-комн. 0 м², от 0.0 млн ₽
ЖК UNO
Сроки сдачи: 4 кв. 2024
Студия 0 м², от 0.0 млн ₽
1-комн. 42 м², от 13.9 млн ₽
2-комн. 61 м², от 18.0 млн ₽
3-комн. 90 м², от 27.0 млн ₽
ЖК Весна-2
Сроки сдачи: 3 кв. 2025
Студия 0 м², от 0.0 млн ₽
1-комн. 35 м², от 7.3 млн ₽
2-комн. 51 м², от 8.6 млн ₽
3-комн. 76 м², от 10.5 млн ₽
ЖК Манзара Тауэрс
Сроки сдачи: 4 кв. 2027
Студия 28 м², от 9.1 млн ₽
1-комн. 34 м², от 9.3 млн ₽
2-комн. 55 м², от 12.6 млн ₽
3-комн. 78 м², от 14.1 млн ₽
Ипотечный калькулятор
Смотреть все
Онлайн-заявка на ипотеку в 11 банков
5 000 000
2. Заполните заявку онлайн или у нас в офисе
3. Подготовьте список документов - Единая анкета на ипотечный кредит - Согласие на обработку ПД - Паспорт - 2-НДФЛ - СНИЛС Может понадобится: - Документы о семейном положении - Для мужчин до 27 лет военный билет - Заверенная работодателем копия трудовой книжки
4. Решение от банка пришлем в смс и личном кабинете.
5. Подготовьтесь к сделке. - Согласуйте дату и время сделки - Подготовьте договор купли-продажи - Выберите страховую компанию - Подготовьте нотариальное согласие мужа или жены по форме банка - Откройте текущий счет и подпишите документы по кредиту
Банк ВТБ
7.5%
5 000 000 ₽
48 000 ₽/мес
Возраст заемщика: от 21 до 75 лет
Стаж работы: от 6 месяцев
Стаж на последнем месте работы: от 3 месяцев
Первоначальный взнос: от 30%
Срок ипотеки: от 1 до 30 лет
Сумма ипотеки: 600 000 — 6 000 000 ₽
Срок рассмотрения: от 1 до 3 дней
Альфа-банк
8%
5 000 000 ₽
48 000 ₽/мес
Возраст заемщика: от 21 до 70 лет
Стаж работы: от 1 года
Стаж на последнем месте работы: от 4 месяцев
Первоначальный взнос: от 30%
Срок ипотеки: от 3 до 30 лет
Сумма ипотеки: 600 000 — 6 000 000 ₽
Срок рассмотрения: от 1 до 2 дня
СберБанк
7.7%
5 000 000 ₽
48 000 ₽/мес
Возраст заемщика: от 18 до 75 лет
Стаж работы: от 1 года
Стаж на последнем месте работы: от 3 месяцев
Первоначальный взнос: от 30%
Срок ипотеки: от 3 до 30 лет
Сумма ипотеки: 300 000 — 6 000 000 ₽
Срок рассмотрения: от 1 до 2 дня
Ак Барс Банк
7.7%
5 000 000 ₽
48 000 ₽/мес
Возраст заемщика: от 18 до 75
Стаж работы: от 1 года
Стаж на последнем месте работы: от 3 месяцев
Первоначальный взнос: от 30%
Срок ипотеки: от 3 до 30 лет
Сумма ипотеки: 500 000 — 6 000 000 ₽
Срок рассмотрения: от 1 до 3 дней
Промсвязьбанк
7.7%
5 000 000 ₽
48 000 ₽/мес
Возраст заемщика: от 21 до 70
Стаж работы: от 1 года
Стаж на последнем месте работы: от 4 месяцев
Первоначальный взнос: от 30%
Срок ипотеки: от 3 до 30 лет
Сумма ипотеки: 500 000 — 6 000 000 ₽
Срок рассмотрения: от 1 до 2 дней
Банк ДОМ.РФ
7.5%
5 000 000 ₽
48 000 ₽/мес
Возраст заемщика: от 21 до 70
Стаж работы: от 1 года
Стаж на последнем месте работы: от 3 месяцев
Первоначальный взнос: от 30%
Срок ипотеки: от 3 до 30 лет
Сумма ипотеки: 500 000 — 6 000 000 ₽
Срок рассмотрения: от 1 до 2 дней
Газпромбанк
7.6%
5 000 000 ₽
48 000 ₽/мес
Возраст заемщика: от 20 до 70
Стаж работы: от 1 года
Стаж на последнем месте работы: от 3 месяцев
Первоначальный взнос: от 30%
Срок ипотеки: от 1 до 30 лет
Сумма ипотеки: 700 000 — 6 000 000 ₽
Срок рассмотрения: от 1 до 3 дней
Россельхозбанк
7.4%
5 000 000 ₽
48 000 ₽/мес
Возраст заемщика: от 21 до 75
Стаж работы: от 1 года
Стаж на последнем месте работы: от 3 месяцев
Первоначальный взнос: от 30%
Срок ипотеки: от 1 до 30 лет
Сумма ипотеки: 100 000 — 6 000 000 ₽
Срок рассмотрения: от 2 до 5 дней
Расчеты являются приблизительными. Не является офертой.
5 000 000
2. Заполните заявку онлайн или у нас в офисе
3. Подготовьте список документов - Единая анкета на ипотечный кредит - Согласие на обработку ПД - Паспорт - 2-НДФЛ - СНИЛС Может понадобится: - Документы о семейном положении - Для мужчин до 27 лет военный билет - Заверенная работодателем копия трудовой книжки
4. Решение от банка пришлем в смс и личном кабинете.
5. Подготовьтесь к сделке. - Согласуйте дату и время сделки - Подготовьте договор купли-продажи - Выберите страховую компанию - Подготовьте нотариальное согласие мужа или жены по форме банка - Откройте текущий счет и подпишите документы по кредиту
Банк ВТБ
10.7%
5 000 000 ₽
48 000 ₽/мес
Возраст заемщика: от 21 до 75 лет
Стаж работы: от 6 месяцев
Стаж на последнем месте работы: от 3 месяцев
Первоначальный взнос: от 30%
Срок ипотеки: от 1 до 30 лет
Сумма ипотеки: 1 500 000 — 60 000 000 ₽
Срок рассмотрения: от 1 до 3 дней
Альфа-банк
8.9%
5 000 000 ₽
48 000 ₽/мес
Возраст заемщика: от 21 до 70 лет
Стаж работы: от 1 года
Стаж на последнем месте работы: от 4 месяцев
Первоначальный взнос: от 30%
Срок ипотеки: от 3 до 30 лет
Сумма ипотеки: 600 000 — 70 000 000 ₽
Срок рассмотрения: от 1 до 2 дня
СберБанк
10.9%
5 000 000 ₽
48 000 ₽/мес
Возраст заемщика: от 18 до 75 лет
Стаж работы: от 1 года
Стаж на последнем месте работы: от 3 месяцев
Первоначальный взнос: от 30%
Срок ипотеки: от 1 до 30 лет
Сумма ипотеки: 300 000 — 100 000 000 ₽
Срок рассмотрения: от 1 до 2 дня
Ак Барс Банк
11.6%
5 000 000 ₽
48 000 ₽/мес
Возраст заемщика: от 18 до 75
Стаж работы: от 1 года
Стаж на последнем месте работы: от 3 месяцев
Первоначальный взнос: от 30%
Срок ипотеки: от 3 до 30 лет
Сумма ипотеки: 500 000 — 50 000 000 ₽
Срок рассмотрения: от 1 до 3 дней
Промсвязьбанк
10.5%
5 000 000 ₽
48 000 ₽/мес
Возраст заемщика: от 21 до 70
Стаж работы: от 1 года
Стаж на последнем месте работы: от 4 месяцев
Первоначальный взнос: от 30%
Срок ипотеки: от 3 до 30 лет
Сумма ипотеки: 500 000 — 30 000 000 ₽
Срок рассмотрения: от 1 до 2 дней
Банк ДОМ.РФ
10.4%
5 000 000 ₽
48 000 ₽/мес
Возраст заемщика: от 21 до 70
Стаж работы: от 1 года
Стаж на последнем месте работы: от 3 месяцев
Первоначальный взнос: от 30%
Срок ипотеки: от 3 до 30 лет
Сумма ипотеки: 500 000 — 50 000 000 ₽
Срок рассмотрения: от 1 до 2 дней
Газпромбанк
10.7%
5 000 000 ₽
48 000 ₽/мес
Возраст заемщика: от 20 до 70
Стаж работы: от 1 года
Стаж на последнем месте работы: от 3 месяцев
Первоначальный взнос: от 30%
Срок ипотеки: от 1 до 30 лет
Сумма ипотеки: 700 000 — 45 000 000 ₽
Срок рассмотрения: от 1 до 3 дней
Россельхозбанк
10.55%
5 000 000 ₽
48 000 ₽/мес
Возраст заемщика: от 21 до 75
Стаж работы: от 1 года
Стаж на последнем месте работы: от 3 месяцев
Первоначальный взнос: от 30%
Срок ипотеки: от 1 до 30 лет
Сумма ипотеки: 100 000 — 60 000 000 ₽
Срок рассмотрения: от 2 до 5 дней
Расчет произведен исходя из ставки 23.3%, первоначального взноса 30% и срока кредита - 30 лет. Расчеты являются приблизительными. Не является офертой.
5 000 000
2. Заполните заявку онлайн или у нас в офисе
3. Подготовьте список документов - Анкета предприятия или ИП - Анкета физлица - Заявка на предоставление кредитного продукта - Копии паспортов физлиц, участвующих в сделке Может понадобится: - Подтверждение целевого использования кредита - Подтверждение финансового положения заёмщика
4. Решение от банка пришлем в смс и личном кабинете.
5. Подготовьтесь к сделке. - Согласуйте дату и время сделки - Подготовьте договор купли-продажи - Выберите страховую компанию - Откройте текущий счет и подпишите документы по кредиту
Банк ВТБ
10.7%
5 000 000 ₽
48 000 ₽/мес
Возраст заемщика: от 18 до 60 лет
Срок ведения бизнеса: от 12 месяцев
Первоначальный взнос: от 5%
Срок ипотеки: от 1 до 30 лет
Сумма ипотеки: 100 000 — 500 000 000 ₽
Срок рассмотрения: от 2 до 5 дней
Альфа-банк
15%
5 000 000 ₽
48 000 ₽/мес
Возраст заемщика: от 18 до 65
Срок ведения бизнеса: от 12 месяцев
Первоначальный взнос: от 15%
Срок ипотеки: от 1 до 10 лет
Сумма ипотеки: до 150 000 000 ₽
Срок рассмотрения: от 2 до 5 дней
СберБанк
13%
5 000 000 ₽
48 000 ₽/мес
Возраст заемщика: от 18 до 70
Срок ведения бизнеса: от 12 месяцев
Первоначальный взнос: от 0%
Срок ипотеки: от 1 до 15 лет
Сумма ипотеки: от 100 000 до 60 000 000 ₽
Срок рассмотрения: от 2 до 5 дней
Ак Барс Банк
12.2%
5 000 000 ₽
48 000 ₽/мес
Возраст заемщика: от 18 до 75
Срок ведения бизнеса: от 12 месяцев
Первоначальный взнос: от 20%
Срок ипотеки: от 1 до 15 лет
Сумма ипотеки: от 500 000 до 60 000 000 ₽
Срок рассмотрения: от 2 до 5 дней
Промсвязьбанк
11.35%
5 000 000 ₽
48 000 ₽/мес
Возраст заемщика: от 21 до 65
Срок ведения бизнеса: от 12 месяцев
Первоначальный взнос: от 0%
Срок ипотеки: от 1 до 15 лет
Сумма ипотеки: от 10 000 000 до 100 000 000 ₽
Срок рассмотрения: от 5 до 10 дней
Банк ДОМ.РФ
9%
5 000 000 ₽
48 000 ₽/мес
Возраст заемщика: от 21 до 65
Срок ведения бизнеса: от 12 месяцев
Первоначальный взнос: от 15%
Срок ипотеки: от 1 до 15 лет
Сумма ипотеки: до 500 000 000 ₽
Срок рассмотрения: от 5 до 10 дней
Газпромбанк
10.25%
5 000 000 ₽
48 000 ₽/мес
Возраст заемщика: от 20 до 70
Стаж работы: от 2 лет
Первоначальный взнос: от 0%
Срок ипотеки: от 1 до 10 лет
Сумма ипотеки: 5 000 000 — 2 000 000 000 ₽
Срок рассмотрения: от 2 до 5 дней
Россельхозбанк
10.55%
5 000 000 ₽
48 000 ₽/мес
Возраст заемщика: от 21 до 75
Стаж работы: от 1 года
Первоначальный взнос: от 10%
Срок ипотеки: от 6 месяцев до 10 лет
Сумма ипотеки: 500 000 — 20 000 000 ₽
Срок рассмотрения: от 2 до 5 дней
Расчеты являются приблизительными. Не является офертой.
5 000 000
2. Заполните заявку онлайн или у нас в офисе
3. Подготовьте список документов - Единая анкета на ипотечный кредит - Согласие на обработку ПД - Паспорт - 2-НДФЛ - СНИЛС Может понадобится: - Документы о семейном положении - Для мужчин до 27 лет военный билет - Заверенная работодателем копия трудовой книжки
4. Решение от банка пришлем в смс и личном кабинете.
5. Подготовьтесь к сделке. - Согласуйте дату и время сделки - Подготовьте договор купли-продажи - Выберите страховую компанию - Подготовьте нотариальное согласие мужа или жены по форме банка - Откройте текущий счет и подпишите документы по кредиту
Банк ВТБ
11.3%
5 000 000 ₽
48 000 ₽/мес
Возраст заемщика: от 21 до 75 лет
Стаж работы: от 6 месяцев
Стаж на последнем месте работы: от 3 месяцев
Первоначальный взнос: от 10%
Срок ипотеки: от 1 до 30 лет
Сумма ипотеки: 600 000 — 60 000 000 ₽
Срок рассмотрения: от 1 до 5 дней
Альфа-банк
11.99%
5 000 000 ₽
48 000 ₽/мес
Возраст заемщика: от 21 до 70
Стаж работы: от 12 месяцев
Стаж на последнем месте работы: от 4 месяцев
Первоначальный взнос: от 30%
Срок ипотеки: от 3 до 30 лет
Сумма ипотеки: от 600 000 до 70 000 000 ₽
Срок рассмотрения: от 1 до 3 дней
СберБанк
11.2%
5 000 000 ₽
48 000 ₽/мес
Возраст заемщика: от 21 до 75
Стаж работы: от 12 месяцев
Стаж на последнем месте работы: от 3 месяцев
Первоначальный взнос: от 25%
Срок ипотеки: от 1 до 30 лет
Сумма ипотеки: от 300 000 до 100 000 000 ₽
Срок рассмотрения: от 1 до 3 дней
Ак Барс Банк
12%
5 000 000 ₽
48 000 ₽/мес
Возраст заемщика: от 18 до 75
Стаж работы: от 12 месяцев
Стаж на последнем месте работы: от 3 месяцев
Первоначальный взнос: от 20%
Срок ипотеки: от 1 до 30 лет
Сумма ипотеки: от 500 000 до 20 000 000 ₽
Срок рассмотрения: от 2 до 5 дней
Банк ДОМ.РФ
10.4%
5 000 000 ₽
48 000 ₽/мес
Возраст заемщика: от 21 до 70
Стаж работы: от 12 месяцев
Стаж на последнем месте работы: от 3 месяцев
Первоначальный взнос: от 20%
Срок ипотеки: от 3 до 30 лет
Сумма ипотеки: от 500 000 до 500 000 000 ₽
Срок рассмотрения: от 1 до 3 дней
Газпромбанк
11.1%
5 000 000 ₽
48 000 ₽/мес
Возраст заемщика: от 20 до 70
Стаж работы: от 12 месяцев
Стаж на последнем месте работы: от 3 месяцев
Первоначальный взнос: от 15%
Срок ипотеки: от 1 до 30 лет
Сумма ипотеки: 700 000 — 450 000 000 ₽
Срок рассмотрения: от 1 до 3 дней
Россельхозбанк
10.55%
5 000 000 ₽
48 000 ₽/мес
Возраст заемщика: от 21 до 75
Стаж работы: от 1 года
Стаж на последнем месте работы: от 3 месяцев
Первоначальный взнос: от 20%
Срок ипотеки: от 1 до 30 лет
Сумма ипотеки: 100 000 — 20 000 000 ₽
Срок рассмотрения: от 2 до 5 дней
Расчеты являются приблизительными. Не является офертой.
5 000 000
2. Заполните заявку онлайн или у нас в офисе
3. Подготовьте список документов - Единая анкета на ипотечный кредит - Согласие на обработку ПД - Паспорт - 2-НДФЛ - СНИЛС Может понадобится: - Документы о семейном положении - Для мужчин до 27 лет военный билет - Заверенная работодателем копия трудовой книжки
4. Решение от банка пришлем в смс и личном кабинете.
5. Подготовьтесь к сделке. - Согласуйте дату и время сделки - Подготовьте договор купли-продажи - Выберите страховую компанию - Подготовьте нотариальное согласие мужа или жены по форме банка - Откройте текущий счет и подпишите документы по кредиту
Предварительный расчет
8.5%
5 000 000 ₽
48 000 ₽/мес
Расчеты являются приблизительными. За точной информацией обращайтесь в офис продаж
Online-ипотека от 16.9%
Отправьте заявку на ипотеку, и получите ответ банка в течение нескольких часов. Заполнив специальную регистрационную форму, ваш запрос будет направлен сразу в несколько надежных банков-партнеров, которые предлагают специальные условия только клиентам АН «Алмаз»
Единая анкета для всех банков
Оценка квартиры
Рассчитать
Определите рыночную стоимость вашей квартиры в несколько кликов.
Наша оценка основана на базе данных более 110 тысяч квартир, за 1 год, расположенных в радиусе 200 метров от указанного вами адреса. Мы учитываем такие параметры, как этажность, тип стен, наличие капитального ремонта, год постройки, а также исключаем объекты с завышенной или заниженной ценой, чтобы гарантировать наиболее точную оценку.
12.2025
9 355 353 ₽ 88 258 ₽/м² 11 974 304 ₽ 221 746 ₽/м² 16 957 401 ₽ 217 403 ₽/м²11.2025
8 890 371 ₽ 83 871 ₽/м² 12 340 974 ₽ 228 537 ₽/м² 16 356 206 ₽ 209 695 ₽/м²10.2025
8 282 365 ₽ 78 136 ₽/м² 11 556 650 ₽ 214 012 ₽/м² 15 848 780 ₽ 203 189 ₽/м²09.2025
8 638 177 ₽ 81 492 ₽/м² 12 150 035 ₽ 225 001 ₽/м² 16 985 378 ₽ 217 761 ₽/м²08.2025
9 467 814 ₽ 89 319 ₽/м² 11 465 455 ₽ 212 323 ₽/м² 15 533 791 ₽ 199 151 ₽/м²07.2025
7 409 699 ₽ 69 903 ₽/м² 10 105 128 ₽ 187 132 ₽/м² 14 176 279 ₽ 181 747 ₽/м²06.2025
7 343 904 ₽ 69 282 ₽/м² 9 826 918 ₽ 181 980 ₽/м² 14 413 173 ₽ 184 784 ₽/м²05.2025
7 255 664 ₽ 68 450 ₽/м² 9 806 361 ₽ 181 599 ₽/м² 16 061 559 ₽ 205 917 ₽/м²04.2025
7 246 358 ₽ 68 362 ₽/м² 10 258 724 ₽ 189 976 ₽/м² 14 321 343 ₽ 183 607 ₽/м²03.2025
7 306 956 ₽ 68 934 ₽/м² 10 369 137 ₽ 192 021 ₽/м² 15 319 618 ₽ 196 405 ₽/м²02.2025
7 486 128 ₽ 70 624 ₽/м² 10 193 912 ₽ 188 776 ₽/м² 14 674 042 ₽ 188 129 ₽/м²01.2025
7 075 165 ₽ 66 747 ₽/м² 10 067 505 ₽ 186 435 ₽/м² 14 634 198 ₽ 187 618 ₽/м²12.2025
5 880 889 ₽ 183 778 ₽/м² 7 597 562 ₽ 155 052 ₽/м² 10 628 208 ₽ 161 033 ₽/м²11.2025
5 999 040 ₽ 187 470 ₽/м² 7 733 209 ₽ 157 821 ₽/м² 9 334 239 ₽ 141 428 ₽/м²10.2025
5 598 007 ₽ 174 938 ₽/м² 7 552 386 ₽ 154 130 ₽/м² 8 521 586 ₽ 129 115 ₽/м²09.2025
5 511 156 ₽ 172 224 ₽/м² 8 135 274 ₽ 166 026 ₽/м² 8 589 452 ₽ 130 143 ₽/м²08.2025
5 308 958 ₽ 165 905 ₽/м² 7 598 364 ₽ 155 069 ₽/м² 8 068 915 ₽ 122 256 ₽/м²07.2025
5 255 965 ₽ 164 249 ₽/м² 6 913 615 ₽ 141 094 ₽/м² 8 190 844 ₽ 124 104 ₽/м²06.2025
5 361 529 ₽ 167 548 ₽/м² 7 104 414 ₽ 144 988 ₽/м² 8 300 176 ₽ 125 760 ₽/м²05.2025
5 423 762 ₽ 169 493 ₽/м² 7 491 353 ₽ 152 885 ₽/м² 9 148 634 ₽ 138 616 ₽/м²04.2025
5 469 096 ₽ 170 909 ₽/м² 6 727 581 ₽ 137 298 ₽/м² 8 605 615 ₽ 130 388 ₽/м²03.2025
6 000 345 ₽ 187 511 ₽/м² 6 994 184 ₽ 142 738 ₽/м² 9 108 667 ₽ 138 010 ₽/м²02.2025
5 186 110 ₽ 162 066 ₽/м² 7 443 310 ₽ 151 904 ₽/м² 8 515 757 ₽ 129 027 ₽/м²01.2025
5 311 667 ₽ 165 990 ₽/м² 6 905 079 ₽ 140 920 ₽/м² 8 667 439 ₽ 131 325 ₽/м²12.2025
11 972 818 ₽ 315 074 ₽/м² 18 383 817 ₽ 306 397 ₽/м² 30 766 662 ₽ 320 486 ₽/м²11.2025
13 229 081 ₽ 348 134 ₽/м² 23 062 088 ₽ 384 368 ₽/м² 34 470 767 ₽ 359 070 ₽/м²10.2025
11 785 128 ₽ 310 135 ₽/м² 17 168 569 ₽ 286 143 ₽/м² 27 743 598 ₽ 288 996 ₽/м²09.2025
13 693 254 ₽ 360 349 ₽/м² 22 008 119 ₽ 366 802 ₽/м² 39 099 040 ₽ 407 282 ₽/м²08.2025
10 590 957 ₽ 278 709 ₽/м² 16 998 760 ₽ 283 313 ₽/м² 24 150 078 ₽ 251 563 ₽/м²07.2025
9 944 636 ₽ 261 701 ₽/м² 16 512 137 ₽ 275 202 ₽/м² 28 326 716 ₽ 295 070 ₽/м²06.2025
10 117 217 ₽ 266 243 ₽/м² 17 054 430 ₽ 284 241 ₽/м² 27 735 171 ₽ 288 908 ₽/м²05.2025
9 740 321 ₽ 256 324 ₽/м² 16 100 813 ₽ 268 347 ₽/м² 39 467 975 ₽ 411 125 ₽/м²04.2025
10 347 168 ₽ 272 294 ₽/м² 17 361 066 ₽ 289 351 ₽/м² 26 295 683 ₽ 273 913 ₽/м²03.2025
9 996 010 ₽ 263 053 ₽/м² 16 320 272 ₽ 272 005 ₽/м² 27 569 165 ₽ 287 179 ₽/м²02.2025
11 603 333 ₽ 305 351 ₽/м² 15 396 035 ₽ 256 601 ₽/м² 24 672 319 ₽ 257 003 ₽/м²01.2025
10 018 452 ₽ 263 643 ₽/м² 14 818 128 ₽ 246 969 ₽/м² 24 426 172 ₽ 254 439 ₽/м²12.2025
9 122 771 ₽ 246 561 ₽/м² 10 056 376 ₽ 182 843 ₽/м² 15 494 320 ₽ 206 591 ₽/м²11.2025
8 421 523 ₽ 227 609 ₽/м² 11 806 282 ₽ 214 660 ₽/м² 14 458 540 ₽ 192 781 ₽/м²10.2025
7 489 290 ₽ 202 413 ₽/м² 11 066 410 ₽ 201 207 ₽/м² 12 776 546 ₽ 170 354 ₽/м²09.2025
7 796 430 ₽ 210 714 ₽/м² 11 779 463 ₽ 214 172 ₽/м² 14 601 803 ₽ 194 691 ₽/м²08.2025
7 932 658 ₽ 214 396 ₽/м² 10 014 352 ₽ 182 079 ₽/м² 15 761 049 ₽ 210 147 ₽/м²07.2025
6 989 274 ₽ 188 899 ₽/м² 9 611 779 ₽ 174 760 ₽/м² 13 943 956 ₽ 185 919 ₽/м²06.2025
6 438 513 ₽ 174 014 ₽/м² 9 682 273 ₽ 176 041 ₽/м² 12 318 296 ₽ 164 244 ₽/м²05.2025
6 757 252 ₽ 182 628 ₽/м² 9 571 893 ₽ 174 034 ₽/м² 11 884 371 ₽ 158 458 ₽/м²04.2025
6 776 886 ₽ 183 159 ₽/м² 9 156 035 ₽ 166 473 ₽/м² 11 436 306 ₽ 152 484 ₽/м²03.2025
6 788 894 ₽ 183 484 ₽/м² 9 831 787 ₽ 178 760 ₽/м² 11 638 636 ₽ 155 182 ₽/м²02.2025
7 828 797 ₽ 211 589 ₽/м² 9 722 732 ₽ 176 777 ₽/м² 12 531 984 ₽ 167 093 ₽/м²01.2025
6 739 605 ₽ 182 151 ₽/м² 10 196 435 ₽ 185 390 ₽/м² 12 961 548 ₽ 172 821 ₽/м²12.2025
7 977 045 ₽ 257 324 ₽/м² 9 292 433 ₽ 193 592 ₽/м² 11 684 475 ₽ 174 395 ₽/м²11.2025
7 007 532 ₽ 226 049 ₽/м² 8 771 197 ₽ 182 733 ₽/м² 10 619 172 ₽ 158 495 ₽/м²10.2025
5 931 379 ₽ 191 335 ₽/м² 7 598 317 ₽ 158 298 ₽/м² 8 911 636 ₽ 133 009 ₽/м²09.2025
5 643 380 ₽ 182 045 ₽/м² 8 037 250 ₽ 167 443 ₽/м² 9 368 707 ₽ 139 831 ₽/м²08.2025
5 482 432 ₽ 176 853 ₽/м² 7 422 923 ₽ 154 644 ₽/м² 10 155 526 ₽ 151 575 ₽/м²07.2025
6 106 623 ₽ 196 988 ₽/м² 7 009 752 ₽ 146 037 ₽/м² 8 879 370 ₽ 132 528 ₽/м²06.2025
5 848 078 ₽ 188 648 ₽/м² 7 078 261 ₽ 147 464 ₽/м² 10 507 666 ₽ 156 831 ₽/м²05.2025
5 839 629 ₽ 188 375 ₽/м² 7 218 664 ₽ 150 389 ₽/м² 8 635 508 ₽ 128 888 ₽/м²04.2025
5 517 369 ₽ 177 980 ₽/м² 7 180 605 ₽ 149 596 ₽/м² 8 936 959 ₽ 133 387 ₽/м²03.2025
5 465 155 ₽ 176 295 ₽/м² 7 119 651 ₽ 148 326 ₽/м² 9 813 045 ₽ 146 463 ₽/м²02.2025
5 534 488 ₽ 178 532 ₽/м² 7 175 731 ₽ 149 494 ₽/м² 10 628 071 ₽ 158 628 ₽/м²01.2025
5 296 953 ₽ 170 869 ₽/м² 6 935 400 ₽ 144 488 ₽/м² 10 467 250 ₽ 156 228 ₽/м²12.2025
9 933 967 ₽ 21 502 ₽/м² 12 393 238 ₽ 221 308 ₽/м² 20 362 888 ₽ 251 394 ₽/м²11.2025
9 617 870 ₽ 20 818 ₽/м² 12 843 373 ₽ 229 346 ₽/м² 20 897 607 ₽ 257 995 ₽/м²10.2025
9 220 761 ₽ 19 958 ₽/м² 11 842 644 ₽ 211 476 ₽/м² 19 212 925 ₽ 237 197 ₽/м²09.2025
9 949 727 ₽ 21 536 ₽/м² 13 624 869 ₽ 243 301 ₽/м² 18 340 209 ₽ 226 422 ₽/м²08.2025
9 291 705 ₽ 20 112 ₽/м² 12 611 743 ₽ 225 210 ₽/м² 16 655 607 ₽ 205 625 ₽/м²07.2025
8 387 792 ₽ 18 155 ₽/м² 12 437 512 ₽ 222 098 ₽/м² 16 042 492 ₽ 198 055 ₽/м²06.2025
8 326 373 ₽ 18 022 ₽/м² 10 426 667 ₽ 186 190 ₽/м² 17 715 753 ₽ 218 713 ₽/м²05.2025
8 810 763 ₽ 19 071 ₽/м² 10 690 559 ₽ 190 903 ₽/м² 18 422 792 ₽ 227 442 ₽/м²04.2025
8 302 064 ₽ 17 970 ₽/м² 11 301 253 ₽ 201 808 ₽/м² 17 475 487 ₽ 215 747 ₽/м²03.2025
8 354 525 ₽ 18 083 ₽/м² 11 884 100 ₽ 212 216 ₽/м² 19 143 799 ₽ 236 343 ₽/м²02.2025
8 383 212 ₽ 18 145 ₽/м² 11 576 468 ₽ 206 723 ₽/м² 18 217 732 ₽ 224 910 ₽/м²01.2025
8 301 106 ₽ 17 968 ₽/м² 11 774 042 ₽ 210 251 ₽/м² 15 977 844 ₽ 197 257 ₽/м²12.2025
8 447 064 ₽ 234 641 ₽/м² 10 928 728 ₽ 202 384 ₽/м² 13 471 242 ₽ 179 617 ₽/м²11.2025
8 389 980 ₽ 233 055 ₽/м² 10 628 910 ₽ 196 832 ₽/м² 12 985 959 ₽ 173 146 ₽/м²10.2025
7 942 637 ₽ 220 629 ₽/м² 10 683 377 ₽ 197 840 ₽/м² 13 128 415 ₽ 175 046 ₽/м²09.2025
8 265 675 ₽ 229 602 ₽/м² 10 448 876 ₽ 193 498 ₽/м² 13 385 058 ₽ 178 467 ₽/м²08.2025
8 673 257 ₽ 240 924 ₽/м² 11 143 957 ₽ 206 370 ₽/м² 14 369 282 ₽ 191 590 ₽/м²07.2025
7 337 600 ₽ 203 822 ₽/м² 9 618 413 ₽ 178 119 ₽/м² 13 165 283 ₽ 175 537 ₽/м²06.2025
7 396 676 ₽ 205 463 ₽/м² 9 398 359 ₽ 174 044 ₽/м² 12 285 404 ₽ 163 805 ₽/м²05.2025
7 165 357 ₽ 199 038 ₽/м² 9 438 336 ₽ 174 784 ₽/м² 13 637 824 ₽ 181 838 ₽/м²04.2025
7 270 185 ₽ 201 950 ₽/м² 10 043 930 ₽ 185 999 ₽/м² 12 738 586 ₽ 169 848 ₽/м²03.2025
7 215 827 ₽ 200 440 ₽/м² 9 963 138 ₽ 184 503 ₽/м² 12 596 871 ₽ 167 958 ₽/м²02.2025
7 510 433 ₽ 208 623 ₽/м² 10 175 727 ₽ 188 439 ₽/м² 12 481 221 ₽ 166 416 ₽/м²01.2025
7 228 866 ₽ 200 802 ₽/м² 9 788 680 ₽ 181 272 ₽/м² 12 561 304 ₽ 167 484 ₽/м²12.2025
9 963 644 ₽ 276 768 ₽/м² 13 649 574 ₽ 257 539 ₽/м² 16 888 478 ₽ 216 519 ₽/м²11.2025
9 045 727 ₽ 251 270 ₽/м² 13 005 849 ₽ 245 393 ₽/м² 16 932 961 ₽ 217 089 ₽/м²10.2025
8 686 433 ₽ 241 290 ₽/м² 12 600 768 ₽ 237 750 ₽/м² 16 408 711 ₽ 210 368 ₽/м²09.2025
9 025 240 ₽ 250 701 ₽/м² 12 794 187 ₽ 241 400 ₽/м² 16 444 538 ₽ 210 827 ₽/м²08.2025
11 051 324 ₽ 306 981 ₽/м² 11 714 785 ₽ 221 034 ₽/м² 15 485 733 ₽ 198 535 ₽/м²07.2025
7 508 542 ₽ 208 571 ₽/м² 9 056 818 ₽ 170 883 ₽/м² 11 632 040 ₽ 149 129 ₽/м²06.2025
7 424 514 ₽ 206 237 ₽/м² 9 371 845 ₽ 176 827 ₽/м² 11 715 678 ₽ 150 201 ₽/м²05.2025
7 212 011 ₽ 200 334 ₽/м² 9 185 810 ₽ 173 317 ₽/м² 12 685 931 ₽ 162 640 ₽/м²04.2025
7 106 737 ₽ 197 409 ₽/м² 9 514 089 ₽ 179 511 ₽/м² 12 660 877 ₽ 162 319 ₽/м²03.2025
7 187 667 ₽ 199 657 ₽/м² 9 403 592 ₽ 177 426 ₽/м² 12 630 657 ₽ 161 932 ₽/м²02.2025
7 014 599 ₽ 194 850 ₽/м² 9 332 856 ₽ 176 092 ₽/м² 12 952 664 ₽ 166 060 ₽/м²01.2025
6 675 254 ₽ 185 424 ₽/м² 8 928 594 ₽ 168 464 ₽/м² 12 764 321 ₽ 163 645 ₽/м²Данный сервис статистики недвижимости предоставляет информацию только в ознакомительных целях. Мы не несем ответственности за точность, полноту или актуальность предоставленных данных. Информация, предоставленная нашим сервисом, не является юридическим советом или рекомендацией. Мы не несем ответственности за любые убытки или ущерб, возникшие в результате использования нашего сервиса. Пользователи должны самостоятельно проверять информацию, полученную через наш сервис, и использовать ее на свой страх и риск.
Наша оценка основана на базе данных более 150 тысяч квартир, за 1 год, расположенных в радиусе 200 метров от указанного вами адреса. Мы учитываем такие параметры, как этажность, тип стен, наличие капитального ремонта, год постройки, а также исключаем объекты с завышенной или заниженной ценой, чтобы гарантировать наиболее точную оценку.
История объявлений
История объявлений в соседних домах за 5 лет в радиусе 500 м²
9 515 000 ₽
Квартира, 2-комн, 46.85 м²
Казань, Отражение
30.12.2025 13:01
9 479 000 ₽
Квартира, 2-комн, 46.67 м²
Казань, Отражение
28.12.2025 09:59
9 449 000 ₽
Квартира, 2-комн, 46.85 м²
Казань, Отражение
24.12.2025 05:34
8 390 000 ₽
Квартира, 2-комн, 68.3 м²
Казань, Братьев Батталовых 20Ак2
23.12.2025 18:35
11 657 000 ₽
Квартира, 2-комн, 53.45 м²
Казань, Отражение
22.12.2025 15:35
11 657 000 ₽
Квартира, 2-комн, 53.45 м²
Казань, Отражение
22.12.2025 15:35
11 491 000 ₽
Квартира, 2-комн, 49.22 м²
Казань, Отражение
22.12.2025 15:35
11 657 000 ₽
Квартира, 2-комн, 53.45 м²
Казань, Отражение
22.12.2025 15:34
11 491 000 ₽
Квартира, 2-комн, 49.22 м²
Казань, Отражение
22.12.2025 15:34
11 491 000 ₽
Квартира, 2-комн, 49.22 м²
Казань, Отражение
22.12.2025 15:34
11 491 000 ₽
Квартира, 2-комн, 49.22 м²
Казань, Отражение
22.12.2025 15:34
11 491 000 ₽
Квартира, 2-комн, 49.22 м²
Казань, Отражение
22.12.2025 15:34
11 491 000 ₽
Квартира, 2-комн, 49.22 м²
Казань, Отражение
22.12.2025 15:20
9 500 000 ₽
Квартира, 2-комн, 47.98 м²
Казань, Батталовский
21.12.2025 19:53
9 000 000 ₽
Квартира, 2-комн, 50.3 м²
Казань, Братьев Батталовых 20А
19.12.2025 12:25
8 250 000 ₽
Квартира, 2-комн, 57.86 м²
Казань, Братьев Батталовых 27
12.12.2025 16:04
10 600 000 ₽
Квартира, 2-комн, 52.5 м²
Казань, Братьев Батталовых 20к1
09.12.2025 14:53
9 479 000 ₽
Квартира, 2-комн, 46.67 м²
Казань, Отражение
09.12.2025 10:54
9 515 000 ₽
Квартира, 2-комн, 46.85 м²
Казань, Отражение
04.12.2025 16:19
9 479 000 ₽
Квартира, 2-комн, 46.67 м²
Казань, Отражение
04.12.2025 16:19
11 744 000 ₽
Квартира, 2-комн, 53.45 м²
Казань, Отражение
04.12.2025 16:19
9 515 000 ₽
Квартира, 2-комн, 46.85 м²
Казань, Отражение
04.12.2025 16:19
9 479 000 ₽
Квартира, 2-комн, 46.67 м²
Казань, Отражение
04.12.2025 16:19
9 479 000 ₽
Квартира, 2-комн, 46.67 м²
Казань, Отражение
04.12.2025 16:19
9 515 000 ₽
Квартира, 2-комн, 46.85 м²
Казань, Отражение
04.12.2025 16:19
9 479 000 ₽
Квартира, 2-комн, 46.67 м²
Казань, Отражение
04.12.2025 16:19
11 744 000 ₽
Квартира, 2-комн, 53.45 м²
Казань, Отражение
04.12.2025 16:19
9 449 000 ₽
Квартира, 2-комн, 46.85 м²
Казань, Отражение
04.12.2025 16:19
9 413 000 ₽
Квартира, 2-комн, 46.67 м²
Казань, Отражение
04.12.2025 16:19
11 870 000 ₽
Квартира, 2-комн, 54.02 м²
Казань, Отражение
04.12.2025 16:19
9 449 000 ₽
Квартира, 2-комн, 46.85 м²
Казань, Отражение
04.12.2025 16:19
9 479 000 ₽
Квартира, 2-комн, 46.67 м²
Казань, Отражение
04.12.2025 16:19
10 400 000 ₽
Квартира, 2-комн, 52.6 м²
Казань, Братьев Батталовых 20к2
03.12.2025 02:58
10 000 000 ₽
Квартира, 2-комн, 48.8 м²
Казань, Братьев Батталовых 20к2
29.11.2025 19:14
9 390 000 ₽
Квартира, 2-комн, 50.0 м²
Казань, Братьев Батталовых 20к2
27.11.2025 10:40
8 690 000 ₽
Квартира, 2-комн, 50.3 м²
Казань, Братьев Батталовых 20А
25.11.2025 00:54
8 100 000 ₽
Квартира, 2-комн, 47.98 м²
Казань, Батталовский
15.11.2025 19:12
9 450 000 ₽
Квартира, 2-комн, 64.0 м²
Казань, Андрея Адо 16
06.11.2025 03:06
11 450 000 ₽
Квартира, 2-комн, 55.3 м²
Казань, Братьев Батталовых 20А
23.10.2025 03:23
9 450 000 ₽
Квартира, 2-комн, 64.0 м²
Казань, Андрея Адо 16
09.10.2025 10:16
9 900 000 ₽
Квартира, 2-комн, 54.02 м²
Казань, Отражение
08.10.2025 13:27
9 149 000 ₽
Квартира, 2-комн, 37.1 м²
Казань, Братьев Батталовых 20к1
29.09.2025 20:23
7 590 000 ₽
Квартира, 2-комн, 58.25 м²
Казань, Батталовский
28.09.2025 12:41
10 590 000 ₽
Квартира, 2-комн, 52.6 м²
Казань, Братьев Батталовых 20к2
24.09.2025 16:43
8 176 000 ₽
Квартира, 2-комн, 36.07 м²
Казань, Батталовский
12.09.2025 11:10
9 719 000 ₽
Квартира, 2-комн, 45.08 м²
Казань, Батталовский
12.09.2025 11:09
9 915 000 ₽
Квартира, 2-комн, 45.52 м²
Казань, Батталовский
12.09.2025 11:08
9 719 000 ₽
Квартира, 2-комн, 45.08 м²
Казань, Батталовский
12.09.2025 11:07
9 599 000 ₽
Квартира, 2-комн, 44.52 м²
Казань, Батталовский
12.09.2025 11:06
9 915 000 ₽
Квартира, 2-комн, 45.52 м²
Казань, Батталовский
12.09.2025 11:06
9 915 000 ₽
Квартира, 2-комн, 45.52 м²
Казань, Батталовский
12.09.2025 11:06
8 332 000 ₽
Квартира, 2-комн, 37.12 м²
Казань, Батталовский
12.09.2025 11:06
10 085 000 ₽
Квартира, 2-комн, 46.3 м²
Казань, Батталовский
12.09.2025 11:05
9 633 000 ₽
Квартира, 2-комн, 44.68 м²
Казань, Батталовский
12.09.2025 11:05
9 633 000 ₽
Квартира, 2-комн, 44.68 м²
Казань, Батталовский
12.09.2025 11:04
8 626 000 ₽
Квартира, 2-комн, 38.43 м²
Казань, Батталовский
12.09.2025 11:04
8 626 000 ₽
Квартира, 2-комн, 38.43 м²
Казань, Батталовский
12.09.2025 11:04
10 085 000 ₽
Квартира, 2-комн, 46.3 м²
Казань, Батталовский
12.09.2025 11:03
9 633 000 ₽
Квартира, 2-комн, 44.68 м²
Казань, Батталовский
12.09.2025 11:03
9 633 000 ₽
Квартира, 2-комн, 44.68 м²
Казань, Батталовский
12.09.2025 11:03
8 332 000 ₽
Квартира, 2-комн, 37.12 м²
Казань, Батталовский
12.09.2025 11:02
10 372 000 ₽
Квартира, 2-комн, 47.14 м²
Казань, Батталовский
12.09.2025 11:02
10 115 000 ₽
Квартира, 2-комн, 46.44 м²
Казань, Батталовский
12.09.2025 11:02
10 372 000 ₽
Квартира, 2-комн, 47.14 м²
Казань, Батталовский
12.09.2025 11:01
8 626 000 ₽
Квартира, 2-комн, 38.43 м²
Казань, Батталовский
12.09.2025 11:01
9 646 000 ₽
Квартира, 2-комн, 44.74 м²
Казань, Батталовский
12.09.2025 11:01
9 646 000 ₽
Квартира, 2-комн, 44.74 м²
Казань, Батталовский
12.09.2025 11:01
10 115 000 ₽
Квартира, 2-комн, 46.44 м²
Казань, Батталовский
12.09.2025 11:01
10 115 000 ₽
Квартира, 2-комн, 46.44 м²
Казань, Батталовский
12.09.2025 11:00
8 874 000 ₽
Квартира, 2-комн, 39.15 м²
Казань, Батталовский
12.09.2025 11:00
8 350 000 ₽
Квартира, 2-комн, 37.2 м²
Казань, Батталовский
12.09.2025 10:59
9 646 000 ₽
Квартира, 2-комн, 44.74 м²
Казань, Батталовский
12.09.2025 10:59
9 646 000 ₽
Квартира, 2-комн, 44.74 м²
Казань, Батталовский
12.09.2025 10:59
8 630 000 ₽
Квартира, 2-комн, 38.07 м²
Казань, Батталовский
12.09.2025 10:58
10 372 000 ₽
Квартира, 2-комн, 47.14 м²
Казань, Батталовский
12.09.2025 10:58
10 115 000 ₽
Квартира, 2-комн, 46.44 м²
Казань, Батталовский
12.09.2025 10:58
9 398 000 ₽
Квартира, 2-комн, 41.87 м²
Казань, Батталовский
12.09.2025 10:57
11 660 000 ₽
Квартира, 2-комн, 54.08 м²
Казань, Батталовский
12.09.2025 10:57
7 958 000 ₽
Квартира, 2-комн, 32.86 м²
Казань, Батталовский
12.09.2025 10:56
7 958 000 ₽
Квартира, 2-комн, 32.86 м²
Казань, Батталовский
12.09.2025 10:56
8 350 000 ₽
Квартира, 2-комн, 37.2 м²
Казань, Батталовский
12.09.2025 10:56
10 246 000 ₽
Квартира, 2-комн, 47.04 м²
Казань, Батталовский
12.09.2025 10:55
9 926 000 ₽
Квартира, 2-комн, 45.57 м²
Казань, Батталовский
12.09.2025 10:55
9 922 000 ₽
Квартира, 2-комн, 45.55 м²
Казань, Батталовский
12.09.2025 10:55
9 926 000 ₽
Квартира, 2-комн, 45.57 м²
Казань, Батталовский
12.09.2025 10:54
8 417 000 ₽
Квартира, 2-комн, 37.5 м²
Казань, Батталовский
12.09.2025 10:54
10 246 000 ₽
Квартира, 2-комн, 47.04 м²
Казань, Батталовский
12.09.2025 10:53
8 417 000 ₽
Квартира, 2-комн, 37.5 м²
Казань, Батталовский
12.09.2025 10:53
10 233 000 ₽
Квартира, 2-комн, 46.98 м²
Казань, Батталовский
12.09.2025 10:52
10 246 000 ₽
Квартира, 2-комн, 47.04 м²
Казань, Батталовский
12.09.2025 10:52
9 149 000 ₽
Квартира, 2-комн, 37.0 м²
Казань, Братьев Батталовых 20к1
09.09.2025 12:42
10 590 000 ₽
Квартира, 2-комн, 52.6 м²
Казань, Братьев Батталовых 20к2
08.09.2025 19:47
9 149 000 ₽
Квартира, 2-комн, 37.1 м²
Казань, Братьев Батталовых 20к1
29.08.2025 20:49
9 499 000 ₽
Квартира, 2-комн, 64.0 м²
Казань, Андрея Адо 16
27.08.2025 12:51
10 449 000 ₽
Квартира, 2-комн, 54.96 м²
Казань, Отражение
26.08.2025 16:18
11 500 000 ₽
Квартира, 2-комн, 60.0 м²
Казань, Братьев Батталовых 20А
24.08.2025 22:39
8 900 000 ₽
Квартира, 2-комн, 61.1 м²
Казань, Рауиса Гареева 4
21.08.2025 07:38
9 900 000 ₽
Квартира, 2-комн, 48.8 м²
Казань, Братьев Батталовых 20к2
16.08.2025 20:37
12 013 000 ₽
Квартира, 2-комн, 54.18 м²
Казань, Отражение
14.08.2025 08:51
11 870 000 ₽
Квартира, 2-комн, 54.02 м²
Казань, Отражение
14.08.2025 08:51
9 800 000 ₽
Квартира, 2-комн, 50.0 м²
Казань, Братьев Батталовых 20к2
29.12.2025 10:38
9 515 000 ₽
Квартира, 2-комн, 46.85 м²
Казань, Отражение
26.12.2025 02:27
9 449 000 ₽
Квартира, 2-комн, 46.85 м²
Казань, Отражение
24.12.2025 05:34
11 657 000 ₽
Квартира, 2-комн, 53.45 м²
Казань, Отражение
22.12.2025 15:35
11 657 000 ₽
Квартира, 2-комн, 53.45 м²
Казань, Отражение
22.12.2025 15:35
11 491 000 ₽
Квартира, 2-комн, 49.22 м²
Казань, Отражение
22.12.2025 15:35
11 491 000 ₽
Квартира, 2-комн, 49.22 м²
Казань, Отражение
22.12.2025 15:35
11 576 000 ₽
Квартира, 2-комн, 49.59 м²
Казань, Отражение
22.12.2025 15:34
11 491 000 ₽
Квартира, 2-комн, 49.22 м²
Казань, Отражение
22.12.2025 15:34
11 657 000 ₽
Квартира, 2-комн, 53.45 м²
Казань, Отражение
22.12.2025 15:34
11 657 000 ₽
Квартира, 2-комн, 53.45 м²
Казань, Отражение
22.12.2025 15:34
11 576 000 ₽
Квартира, 2-комн, 49.59 м²
Казань, Отражение
22.12.2025 15:34
11 657 000 ₽
Квартира, 2-комн, 53.45 м²
Казань, Отражение
22.12.2025 15:20
9 800 000 ₽
Квартира, 2-комн, 51.7 м²
Казань, Братьев Батталовых 20к2
20.12.2025 16:42
10 700 000 ₽
Квартира, 2-комн, 52.5 м²
Казань, Братьев Батталовых 20к1
18.12.2025 12:54
10 000 000 ₽
Квартира, 2-комн, 48.8 м²
Казань, Братьев Батталовых 20к2
12.12.2025 13:12
9 449 000 ₽
Квартира, 2-комн, 46.85 м²
Казань, Отражение
09.12.2025 10:54
9 479 000 ₽
Квартира, 2-комн, 46.67 м²
Казань, Отражение
05.12.2025 06:04
9 515 000 ₽
Квартира, 2-комн, 46.85 м²
Казань, Отражение
04.12.2025 16:19
11 744 000 ₽
Квартира, 2-комн, 53.45 м²
Казань, Отражение
04.12.2025 16:19
9 479 000 ₽
Квартира, 2-комн, 46.67 м²
Казань, Отражение
04.12.2025 16:19
11 870 000 ₽
Квартира, 2-комн, 54.02 м²
Казань, Отражение
04.12.2025 16:19
9 413 000 ₽
Квартира, 2-комн, 46.67 м²
Казань, Отражение
04.12.2025 16:19
9 479 000 ₽
Квартира, 2-комн, 46.67 м²
Казань, Отражение
04.12.2025 16:19
9 449 000 ₽
Квартира, 2-комн, 46.85 м²
Казань, Отражение
04.12.2025 16:19
9 449 000 ₽
Квартира, 2-комн, 46.85 м²
Казань, Отражение
04.12.2025 16:19
9 479 000 ₽
Квартира, 2-комн, 46.67 м²
Казань, Отражение
04.12.2025 16:19
9 479 000 ₽
Квартира, 2-комн, 46.67 м²
Казань, Отражение
04.12.2025 16:19
9 413 000 ₽
Квартира, 2-комн, 46.67 м²
Казань, Отражение
04.12.2025 16:19
9 515 000 ₽
Квартира, 2-комн, 46.85 м²
Казань, Отражение
04.12.2025 16:19
9 515 000 ₽
Квартира, 2-комн, 46.85 м²
Казань, Отражение
04.12.2025 16:19
10 700 000 ₽
Квартира, 2-комн, 52.5 м²
Казань, Братьев Батталовых 20к1
03.12.2025 11:33
9 900 000 ₽
Квартира, 2-комн, 54.02 м²
Казань, Палитра
30.11.2025 10:23
9 200 000 ₽
Квартира, 2-комн, 50.3 м²
Казань, Братьев Батталовых 20А
29.11.2025 15:34
9 500 000 ₽
Квартира, 2-комн, 47.98 м²
Казань, Батталовский
26.11.2025 17:38
10 000 000 ₽
Квартира, 2-комн, 48.8 м²
Казань, Братьев Батталовых 20к1
21.11.2025 12:18
11 850 000 ₽
Квартира, 2-комн, 50.0 м²
Казань, Братьев Батталовых 20А
10.11.2025 15:33
9 390 000 ₽
Квартира, 2-комн, 50.0 м²
Казань, Братьев Батталовых 20к2
30.10.2025 11:29
10 400 000 ₽
Квартира, 2-комн, 52.6 м²
Казань, Братьев Батталовых 20к2
22.10.2025 17:58
9 900 000 ₽
Квартира, 2-комн, 54.02 м²
Казань, Отражение
08.10.2025 13:27
8 690 000 ₽
Квартира, 2-комн, 50.3 м²
Казань, Братьев Батталовых 20А
01.10.2025 15:19
8 999 000 ₽
Квартира, 2-комн, 50.3 м²
Казань, Братьев Батталовых 20А
28.09.2025 22:29
11 550 000 ₽
Квартира, 2-комн, 55.3 м²
Казань, Братьев Батталовых 20А
27.09.2025 16:27
7 825 000 ₽
Квартира, 2-комн, 32.31 м²
Казань, Батталовский
12.09.2025 11:26
8 176 000 ₽
Квартира, 2-комн, 36.07 м²
Казань, Батталовский
12.09.2025 11:10
9 719 000 ₽
Квартира, 2-комн, 45.08 м²
Казань, Батталовский
12.09.2025 11:08
9 915 000 ₽
Квартира, 2-комн, 45.52 м²
Казань, Батталовский
12.09.2025 11:08
11 534 000 ₽
Квартира, 2-комн, 52.42 м²
Казань, Батталовский
12.09.2025 11:07
10 065 000 ₽
Квартира, 2-комн, 46.21 м²
Казань, Батталовский
12.09.2025 11:06
9 915 000 ₽
Квартира, 2-комн, 45.52 м²
Казань, Батталовский
12.09.2025 11:06
8 615 000 ₽
Квартира, 2-комн, 38.38 м²
Казань, Батталовский
12.09.2025 11:06
10 085 000 ₽
Квартира, 2-комн, 46.3 м²
Казань, Батталовский
12.09.2025 11:06
9 633 000 ₽
Квартира, 2-комн, 44.68 м²
Казань, Батталовский
12.09.2025 11:05
8 626 000 ₽
Квартира, 2-комн, 38.43 м²
Казань, Батталовский
12.09.2025 11:05
8 332 000 ₽
Квартира, 2-комн, 37.12 м²
Казань, Батталовский
12.09.2025 11:04
8 626 000 ₽
Квартира, 2-комн, 38.43 м²
Казань, Батталовский
12.09.2025 11:04
9 633 000 ₽
Квартира, 2-комн, 44.68 м²
Казань, Батталовский
12.09.2025 11:04
10 085 000 ₽
Квартира, 2-комн, 46.3 м²
Казань, Батталовский
12.09.2025 11:03
10 085 000 ₽
Квартира, 2-комн, 46.3 м²
Казань, Батталовский
12.09.2025 11:03
9 633 000 ₽
Квартира, 2-комн, 44.68 м²
Казань, Батталовский
12.09.2025 11:03
8 630 000 ₽
Квартира, 2-комн, 38.07 м²
Казань, Батталовский
12.09.2025 11:02
9 646 000 ₽
Квартира, 2-комн, 44.74 м²
Казань, Батталовский
12.09.2025 11:02
9 646 000 ₽
Квартира, 2-комн, 44.74 м²
Казань, Батталовский
12.09.2025 11:02
8 874 000 ₽
Квартира, 2-комн, 39.15 м²
Казань, Батталовский
12.09.2025 11:01
9 646 000 ₽
Квартира, 2-комн, 44.74 м²
Казань, Батталовский
12.09.2025 11:01
10 115 000 ₽
Квартира, 2-комн, 46.44 м²
Казань, Батталовский
12.09.2025 11:01
8 874 000 ₽
Квартира, 2-комн, 39.15 м²
Казань, Батталовский
12.09.2025 11:01
10 372 000 ₽
Квартира, 2-комн, 47.14 м²
Казань, Батталовский
12.09.2025 11:00
9 646 000 ₽
Квартира, 2-комн, 44.74 м²
Казань, Батталовский
12.09.2025 11:00
9 646 000 ₽
Квартира, 2-комн, 44.74 м²
Казань, Батталовский
12.09.2025 11:00
8 874 000 ₽
Квартира, 2-комн, 39.15 м²
Казань, Батталовский
12.09.2025 10:59
8 630 000 ₽
Квартира, 2-комн, 38.07 м²
Казань, Батталовский
12.09.2025 10:59
9 646 000 ₽
Квартира, 2-комн, 44.74 м²
Казань, Батталовский
12.09.2025 10:58
8 874 000 ₽
Квартира, 2-комн, 39.15 м²
Казань, Батталовский
12.09.2025 10:58
8 350 000 ₽
Квартира, 2-комн, 37.2 м²
Казань, Батталовский
12.09.2025 10:58
9 646 000 ₽
Квартира, 2-комн, 44.74 м²
Казань, Батталовский
12.09.2025 10:58
10 372 000 ₽
Квартира, 2-комн, 47.14 м²
Казань, Батталовский
12.09.2025 10:57
9 719 000 ₽
Квартира, 2-комн, 45.08 м²
Казань, Батталовский
12.09.2025 10:56
9 398 000 ₽
Квартира, 2-комн, 41.87 м²
Казань, Батталовский
12.09.2025 10:56
9 398 000 ₽
Квартира, 2-комн, 41.87 м²
Казань, Батталовский
12.09.2025 10:56
8 644 000 ₽
Квартира, 2-комн, 38.51 м²
Казань, Батталовский
12.09.2025 10:55
9 719 000 ₽
Квартира, 2-комн, 45.08 м²
Казань, Батталовский
12.09.2025 10:55
9 922 000 ₽
Квартира, 2-комн, 45.55 м²
Казань, Батталовский
12.09.2025 10:55
9 926 000 ₽
Квартира, 2-комн, 45.57 м²
Казань, Батталовский
12.09.2025 10:54
8 406 000 ₽
Квартира, 2-комн, 37.45 м²
Казань, Батталовский
12.09.2025 10:54
10 246 000 ₽
Квартира, 2-комн, 47.04 м²
Казань, Батталовский
12.09.2025 10:54
9 719 000 ₽
Квартира, 2-комн, 45.08 м²
Казань, Батталовский
12.09.2025 10:53
7 944 000 ₽
Квартира, 2-комн, 32.8 м²
Казань, Батталовский
12.09.2025 10:53
8 243 000 ₽
Квартира, 2-комн, 33.73 м²
Казань, Батталовский
12.09.2025 10:52
11 841 000 ₽
Квартира, 2-комн, 54.92 м²
Казань, Батталовский
12.09.2025 10:52
9 499 000 ₽
Квартира, 2-комн, 64.0 м²
Казань, Андрея Адо 16
09.09.2025 09:59
10 500 000 ₽
Квартира, 2-комн, 55.37 м²
Казань, Братьев Батталовых
01.09.2025 11:10
11 800 000 ₽
Квартира, 2-комн, 55.3 м²
Казань, Братьев Батталовых 20А
27.08.2025 12:51
10 449 000 ₽
Квартира, 2-комн, 54.96 м²
Казань, Отражение
26.08.2025 16:18
11 500 000 ₽
Квартира, 2-комн, 60.6 м²
Казань, Братьев Батталовых 20А
25.08.2025 17:45
10 500 000 ₽
Квартира, 2-комн, 55.37 м²
Казань, Братьев Батталовых
24.08.2025 10:33
8 999 000 ₽
Квартира, 2-комн, 50.3 м²
Казань, Братьев Батталовых 20А
21.08.2025 01:54
12 127 000 ₽
Квартира, 2-комн, 54.69 м²
Казань, Отражение
14.08.2025 08:51
11 689 000 ₽
Квартира, 2-комн, 49.59 м²
Казань, Отражение
14.08.2025 08:51
12 013 000 ₽
Квартира, 2-комн, 54.18 м²
Казань, Отражение
14.08.2025 08:51
Проверка недвижимости
Начать проверкуЮридическая проверка
Проверяем объекты недвижимости по различным направлениям, в зависимости от типа недвижимости и цели ее приобретения.
Что мы проверяем ?
Оценка документов, необходимых для проведения сделки купли-продажи. (Настоящие/поддельные, действительные/недействительные, в полном объёме/недостаточные и т.д.)
Проверка юридической чистоты истории квартиры, возможных прав третьих лиц, в т.ч. на проживание
Проверка дееспособности
Проверка наличия/отсутствия прав несовершеннолетних детей
Проверка наличия/отсутствия арестов, обременений, запретов
Проверка отсутствия/наличия задолженностей по оплате коммунальных услуг
Проверка нахождения дома в списках, подлежащих реконструкции или сносу
Автоматическая проверка недвижимости и собственников в базах МВД, ФНС, ФССП, УФМС, Росреестр, Суды и т.д.
*Проверка недвижимости - для клиентов АН Алмаз
Съемка квадрокоптером
Аэросъемка 360 градусов
С помощью такой съемки можно получить панорамный обзор, охватывающий все направления, что позволяет зрителям исследовать и изучать окружающую среду или объект недвижимости во всех деталях.
Аэросъемка дома
Снимки с высоты подчеркивают архитектурные особенности дома, его расположение на участке и окружающую местность.
Аэросъемка для рекламы
Съемка с воздуха позволяет создавать эпические панорамы, плавные движения и динамичные сцены, которые придают рекламе эффект кинематографического фильма.
Аэрофотосъемка местности
Высококачественные фотографии и видеоматериалы с высоты обеспечивают детальное представление о топографии, рельефе, водных объектах, дорожной инфраструктуре и других особенностях местности.
Съемка квадрокоптером для клиентов Алмаз
3Д Тур по квартире
Лучший способ демонстрации
Виртуальный 3D тур на сегодняшний день является лучшим инструментом передачи визуальной информации о пространстве
Экономия времени
Люди стремятся экономить своё время и получить максимум информации об объекте не выходя из дома
Конкурентное приемущество
Используя панорамы 360, вы создаете впечатления от первого лица для гостей и выделяете себя на фоне конкурентов
Повышение лояльности
90% потенциальных клиентов, просмотревших виртуальный тур, заявили, что это положительно повлияло на их решение
Упаковка объекта недвижимости
Фотосъемка недвижимости
Снимаем выбирая эффектные ракурсы, по максимуму раскрывая эстетику архитектуры и ее практическую ценность.
Видеоролик
Видеоролик позволяет эмоционально настроить покупателя на объект, чтобы он пришел с ожиданием.
Продающий текст
Хорошое описание помогает правильно представить продаваемый объект, а продающие слова помогут дорого продать.
Рекламные материалы
Разработка рекламных материалов представляет собой комплексный маркетинговый и творческий процесс, в котором художественное решение и текст работают для достижения целей
Цифровая экосистема для риэлтора
CRM для агентства недвижимости
Управляйте недвижимостью эффективно с нашей CRM: автоматизация, аналитика и удобный доступ к данным.
Управление объектами — быстрый доступ и обновление данных по недвижимости.
Автоматизация сделок — настройка шаблонов и уведомлений для ускорения процессов.
Аналитика и отчеты — подробные данные для анализа рынка и эффективности.
Управление клиентами — учет и сегментация клиентов для персонализации предложений.
Интеграция с сайтами — публикация объявлений прямо из CRM на ведущие площадки.
Подписка: от 5000 ₽ / 1 мес
Конструктор сайта
Конструктор сайтов для недвижимости — быстрый запуск профессионального сайта с удобным управлением, поддержкой SEO и мобильной оптимизацией.
Удобный интерфейс — простой редактор для настройки страниц и контента.
SEO-оптимизация — встроенные инструменты для улучшения видимости сайта.
Адаптивный дизайн — сайт корректно отображается на всех устройствах.
Интеграция с CRM — автоматизация обновления данных и управление заявками.
Встроенные модули(сторис, всплывающий виджет, плавающая кнопка) — выбор и настройка модулей для функциональности сайта.
Подписка: от 5000 ₽ / 1 мес
Оформление сделок
Весь спектр услуг для недвижимости в одном месте: оформление сделок, ипотека, страховка и многое другое.
Электронная сделка — безопасное и удобное оформление дистанционно.
Оформление ипотеки — помощь в подборе и получении выгодных условий.
Сопровождение сделки — полное юридическое сопровождение на каждом этапе.
Оформление страховки — защита вашей недвижимости от любых рисков.
Консультации — индивидуальные рекомендации для ваших целей и ситуации.
Подписка: от 5000 ₽ / 1 мес
База недвижимости
Наша база недвижимости — это удобный доступ к проверенным объектам: дома, квартиры, коммерческие объекты.
Удобный поиск — фильтры по параметрам для быстрого нахождения нужного объекта.
Актуальные данные — регулярное обновление информации об объектах.
Подробные описания — полные характеристики и фото для каждой недвижимости.
Разделы по типам — легкий доступ к домам, квартирам и коммерческим объектам.
Поддержка клиентов — консультации и помощь в подборе недвижимости.
Подписка: от 5000 ₽ / 1 мес
Проверка продавца и недвижимости
Сервис проверки физических лиц и недвижимости обеспечивает полную безопасность сделки. Защита от мошенничества и проверенные данные для уверенности в покупке.
Проверка физического лица — анализ документов и финансовой истории продавца.
Проверка объекта — выявление обременений и юридических рисков недвижимости.
Подписка: от 5000 ₽ / 1 мес
Облачное хранилище
Наше облако для недвижимости позволяет хранить, защищать и управлять данными объектов в едином пространстве.
Безопасное хранение — защита данных с шифрованием и резервным копированием.
Доступ 24/7 — управление данными с любых устройств в любое время.
Легкий обмен — быстрая передача данных с коллегами и клиентами.
Масштабируемость — гибкость для хранения любого объема информации.
Подписка: от 5000 ₽ / 1 мес
Автоматическое размещение объявлений
Наш сервис автоматического размещения объявлений позволяет публиковать объекты недвижимости на популярных площадках одним кликом.
Массовое размещение — объявления на 30+ площадках
Экономия времени — автоматизация публикации в один клик.
Отчет о размещении — список ссылок на объявления по каждой площадке в личном кабинете.
Подписка: от 5000 ₽ / 1 мес
Chat-бот для недвижимости
Chat-бот для недвижимости: автоматизация общения, создание текстов и эффективное взаимодействие с клиентами.
Ответы на часто задаваемые вопросы — автоматическое предоставление информации о процессе покупки и аренды.
Генерация текстов — создание уникальных описаний объектов для объявлений
Персонализированные рекомендации — предложения недвижимости, основанные на предпочтениях клиентов.
Подписка: от 5000 ₽ / 1 мес
Мобильное приложение
Проверенные объекты
В базе только проверенные объекты от надежных застройщиков и собственников.
Поиск на карте
Поиск недвижимости на карте Казани, квартиры, офисы, земельные участки, дома и др.
Фильтр
Поиск с фильтрацией по необходимому вам ценовому диапазону, площади, направлению, местонахождению.
Чат
В приложение можно задать любой интересующий Вас вопрос.
Наши услуги
ВТОРИЧНАЯ
ЗАГОРОДНАЯ
НОВОСТРОЙКИ
ЭЛИТНАЯ
КОММЕРЧЕСКАЯ
НЕДВИЖИМОСТЬ ЗА РУБЕЖОМ
ПРИВОЛЖСКИЙ Р-Н
НОВО-САВИНОВСКИЙ Р-Н
АВИАСТРОИТЕЛЬНЫЙ Р-Н
КИРОВСКИЙ Р-Н
ЛАИШЕВСКИЙ Р-Н
ЗЕЛЕНОДОЛЬСКИЙ Р-Н
ПЕСТРЕЧИНСКИЙ Р-Н
УСЛУГИ





